Work
Freelance Work
Instagram
About
Contact
Menu
Design + Architecture
Work
Freelance Work
Instagram
About
Contact
On the Boards
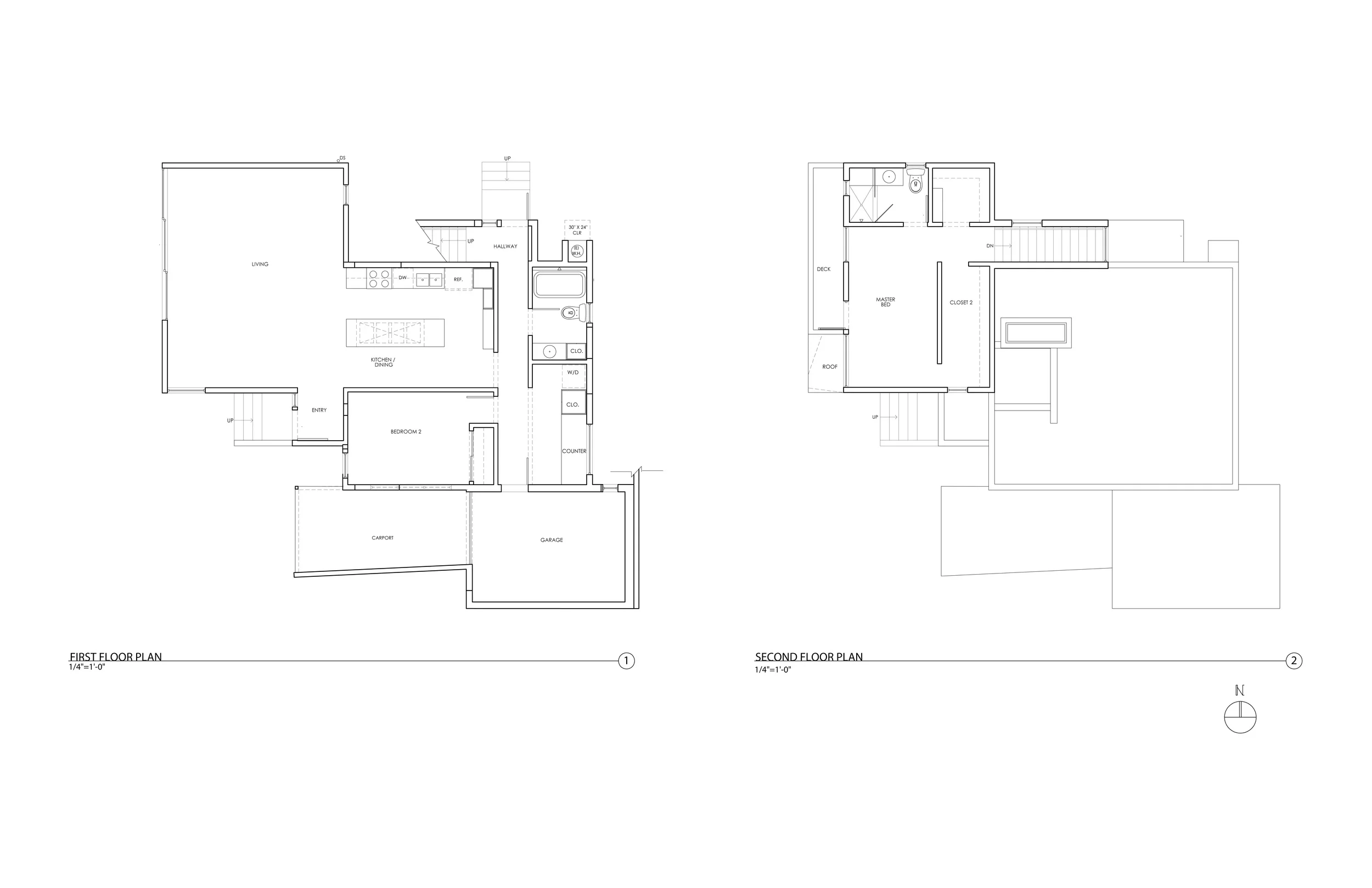
A new single family residence on Orcas Island.
Cave Creek
Vashon II
Seward Park Residence
Silverlake
Sun Valley
Belltown (in progress)
Burlingame (in progress)
prev
/
next
Back to Work
6
On the Boards
21
Cave Creek
12
Vashon II
14
Seward Park
4
Silverlake
4
Sun Valley
1
Belltown (in progress)
1
Burlingame (in progress)